MOVE-IN NY Homes
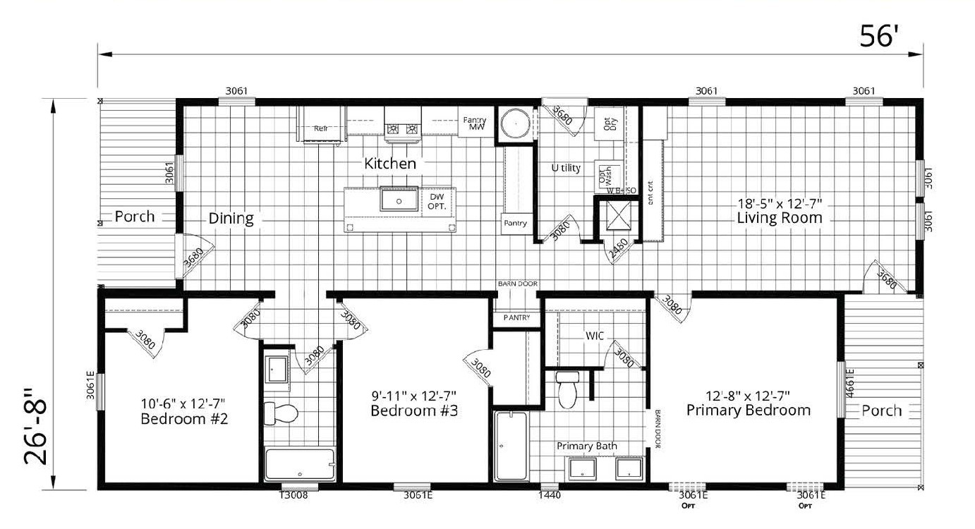
The Land Bank plans to build 52 single-story manufactured homes throughout City between June 2026 and June 2027. These will all feature three bedrooms and two full bathrooms. 35 of them are about 1,500 sq. ft. and 17 are about 1,100 sq. ft. The first homes should be available by summer 2026. Join us and learn all about these homes, how to qualify as a buyer, how to reserve one of these sites, and the process to purchase.
Special incentives are available to ensure affordability for income-qualified buyers earning anywhere from 50 – 120% of Area Median Income.
View a video of our informational webinar for buyers.
How do I reserve a house?
Waiting List Opens on April 16.
Questions? Call 315-422-2301 or email Daniel Stazzone or Jamilah Damiani
What are the income requirements?
Our goal is to help 13 homebuyers in each of these four income categories:
- Household income at or below 120% of AMI,
- at or below 100% of AMI,
- at or below 80%, and
- at or below 60%.
In addition you’ll need to be pre-approved for a mortgage and your estimated mortgage, taxes, insurance, and utilities can’t exceed 30% of your monthly gross income. Our staff will walk you through all of this when they process your application.






